티스토리 뷰
용인 모현 도시개발사업 구역 내 위치한 3천 세대가 넘는 미니 신도시급 브랜드 타운 아파트로 조성될 힐스테이트 몬테로이 아파트 분양을 드디어 시작합니다. 힐스테이트 몬테로이아파트 분양 전부터 관심을 받는 이유는 역시 수도권에서 희소성 높은 비규제 지역에 공급되기도 하지만 모현 도시개발사업 구역 안에 조성돼 높은 미래가치를 기대할 수 있기 때문입니다.

아파트가 들어서는 용인 모현 도시개발사업은 기존 택지지구 개발사업과 달리 주거, 상업, 산업, 유통, 정보통신, 생태, 문화, 보건 및 복지 등의 기능이 있는 단지 또는 시가지 조성 사업을 말하는데 민간사업자 또는 지자체가 개발을 주도하기 때문에 사업 추진 속도가 빠르다는 장점이 있습니다.
수도권 비규제 지역에 공급되는 단지인만큼 많은 분들이 힐스테이트 몬테로이 분양정보에 대해 관심이 있을 텐데 입주자 모집공고문을 참고해서 정리했으니 2월 3일부터 시작하는 청약일정에 참여해보시면 좋을 것 같습니다.
목차
용인 모현 힐스테이트 몬테로이 아파트
본 아파트의 최초 입주자 모집공고일은 2022.01.20.입니다.(청약자격조건의 기간, 나이, 지역우선 등의 청약자격조건 판단 기준일입니다.)
경기도 용인시 처인구 모현읍 왕산리 산 25번지 일원에 3개 블록으로 공급되는 힐스테이트 몬테로이는 블록별로 입주일이 다르므로 참고하세요.
힐스테이트 몬테로이 1블록 총 1,043세대 입주예정시기는 2024년 11월,
힐스테이트 몬테로이 2블록 총 1,318세대 입주예정시기는 2025년 1월,
힐스테이트 몬테로이 3블록 총 1,370세대 입주예정시기는 2024년 11월입니다.

■ 해당 주택건설지역인 경기도 용인시 처인구 모현읍은 비투기 과열지구 및 비 청약과열지역으로서, 1 주택 이상 소유한 세대에 속한 분도 1순위 자격이 부여됩니다. 또한 본 아파트는 「수도권정비계획법」 제6조 제1항의 규정에 의한 자연보전 권역입니다.
■ 본 아파트는 당첨자 발표일이 동일한 모든 주택(민간 사전청약, 분양주택, 분양전환 공공임대주택)에 한하여 1인 1건만 신청이 가능하며, 2건 이상 중복신청 시 모두 무효처리 또는 당첨자 선정 이후에도 당첨 무효(예비입주자 지위 무효)되오니 유의하시기 바랍니다. (단, 동일 단지 내 1인이 특별공급 및 일반공급에 각 1건씩 청약 가능하며 특별공급 당첨자로 선정 시 일반공급 선정 대상에서 제외처리함)
■ 본 아파트는 수도권 자연보전구역 내 비투기 과열지구 및 비 청약과열지역의 민간택지에서 공급하는 분양가 상한제 미적용 민영주택으로 「주택공급에 관한 규칙」 제54조에 따른 재당첨 제한을 적용받지 않고 기존 주택 당첨 여부와 관계없이 본 아파트 청약이 가능합니다. (단, 본 제도는 당첨된 청약통장의 재사용을 허용하는 제도가 아니므로 당첨된 청약통장은 계약 여부와 관계없이 재사용이 불가합니다.)
■ 본 아파트의 당첨자로 선정 시 당첨자 및 세대에 속한 자는 당첨일로부터 향후 5년간 투기과열지구 및 청약과열지역에서 공급하는 주택의 1순위 청약접수가 제한되오니 유의하시기 바랍니다.
청약자격조건
■ 본 아파트는 최초 입주자 모집공고일(2022.01.20) 현재 용인시에 거주하거나 수도권(서울특별시, 인천광역시, 경기도) 지역에 거주(주민등록표 등본 기준)하는 만 19세 이상인 자 또는 세대주인 미성년자(자녀양육, 형제자매 부양)[국내에서 거주하는 재외동포(재외국민, 외국국적 동포) 및 외국인 포함]의 경우 청약이 가능합니다. 다만 청약 신청자 중 같은 순위 내에 경쟁이 있을 경우 해당 주택건설지역인 용인시 거주자가 우선합니다.

※ 1순위 : 입주자저축에 가입하여 가입기간이 12개월이 경과하고 지역별/면적별 예치금액 이상 납입한 자 ※ 2순위 : 입주자저축에 가입하였으나, 1순위에 해당되지 않는 자
특별공급은 무주택세대 구성원에게 1세대 1 주택(공급을 신청하는 경우에는 1세대 1명을 말함) 기준으로 공급하므로 세대 내 2명 이상이 각각 신청하여 1명이라도 선정이 되면, 당첨자는 부적격 당첨자로 처리되고, 예비입주자는 입주자로 선정될 기회를 제공받을 수 없으니 유의하여 신청하시기 바랍니다.
용인 모현 힐스테이트 몬테로 이 특별공급에 대한 정보는 다음 내용을 참고하면 도움이 될 것입니다.
용인 힐스테이트 몬테로이 특별공급 분양정보
용인 모현 도시개발사업지역인 용인시 처인구 모현읍 왕산리 산 25번지 일원에 공급되는 힐스테이트 몬테로이 아파트 입주자모집공고가 1월 20일 목요일 공지 예정으로 지자체 주민센터에서 특
super.dreamschun.com
청약일정
청약 신청 접수는 당첨자 발표일이 동일한 주택 전체(청약 홈 및 LH청약센터 등의 기관을 통해 청약접수 및 당첨자 선정을 진행하는 경우 포함)에 대하여 1인 1건만 신청 가능하며, 1인 2건 이상 청약신청할 경우에는 모두를 무효처리 및 (민간 사전청약) 당첨자 선정 후에도 무효처리하오니 유의하시기 바랍니다.
단, 본인이 같은 주택에 특별공급과 일반공급 중복신청이 가능하나 특별공급 당첨자로 선정될 경우 일반공급 당첨자 선정에서 제외됩니다. 본인이 동일주택에 특별공급 중복청약 시에는 모두 무효 처리되므로 주의하세요.

고령자, 장애인 등 인터넷 청약이 불가한 경우에 한해 특별공급은 견본주택 방문접수(10:00~14:00, 은행 창구 접수 불가), 일반공급은 청약통장 가입은행 본・지점(09:00~16:00/코로나19 인하여 영업점별 영업시간이 상이할 수 있사오니 청약 전 접수 가능시간 확인하시기 바랍니다)에서 청약 가능합니다.

특별공급 및 일반공급 입주자로 선정된 자 중 당첨이 취소되거나 공급계약을 체결하지 아니한 자 또는 공급계약을 해약한 자가 있으면 소명기간이 지난 후 특별공급 및 일반공급 예비입주자에게 순번에 따라 공급하되, 최초로 예비입주자를 입주자로 선정하는 경우 특별공급 및 일반공급의 당첨 취소 또는 미계약 물량과 해당 주택의 동・호수를 공개한 후 동・호수를 배정하는 추첨의 참가 의사를 표시한 특별공급 예비입주자에 대하여는 특별공급 물량을, 일반공급 예비입주자에 대하여는 일반공급 물량을 추첨의 방법으로 동・호수를 배정하여 공급하고, 특별공급 물량 중 특별공급 예비입주자에게 공급하고 남은 주택은 일반공급 예비입주 자에게 공급합니다.
분양가
힐스테이트 몬테로이 아파트는 상한제 미적용 주택으로 주택형별 공급금액은 사업주체 및 시공자가 책정한 금액으로 동일한 주택형이라 하여도 타입별 세부면적과 해당 동, 라인, 층은 상이할 수 있으니 블록별 분양 가격 및 입주자모집공고 내용 확인 후 청약하시기 바랍니다.
힐스테이트 몬테로이 1블록 분양가격 및 납입일정

힐스테이트 몬테로이 2블록 분양가격 및 납입일정


힐스테이트 몬테로이 3블록 분양가격 및 납입일정


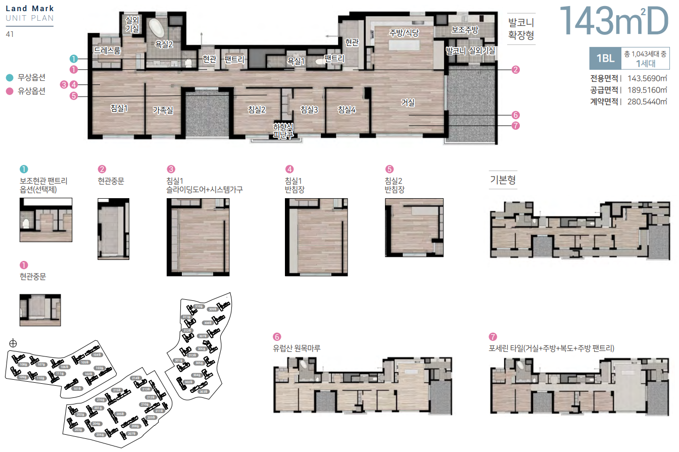
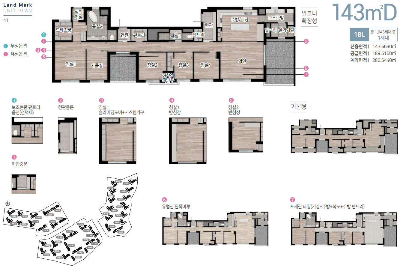
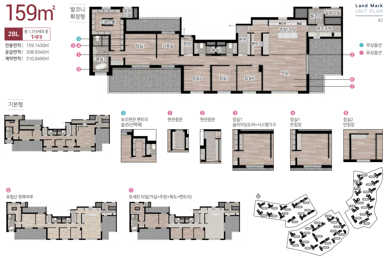
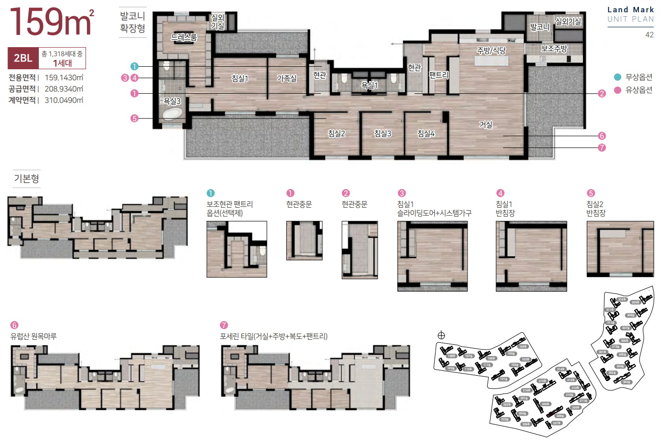
평면도
4 Bay 판상형 구조를 포함한 총 22가지 다양한 타입으로 구성되어 있으며, 개방감 및 채광, 통풍이 우수한 공간 평면특화설계로 되어 있습니다.
남측향 위주의 단지 배치와 통풍과 채광, 일조량을 극대화한 쾌적한 주거환경이 조성되어 있습니다.
전용면적 59㎡ A타입의 경우 4 Bay 판상형 구조로 안방 드레스룸뿐만 아니라 소형 평형에서 보기 드문 복도 팬트리가 적용되어 넉넉한 수납공간을 확보했습니다.




전용면적 76㎡ A, B타입의 경우 복도 팬트리 및 안방 드레스룸이 적용되었습니다.


전용면적 84㎡ B타입의 경우 안방 드레스룸, 주방 및 현관 팬트리, 광폭 주방 공간이 적용되었으며,
전용면적 84㎡ C타입은 H-클린 현관이 옵션으로 제공되며 복도 및 팬트리, 안방 드레스룸과 알파룸 등 수납공간을 극대화했습니다.










전용면적 109㎡ A타입은 4.5 Bay 판상형 구조로 현관 팬트리, 복도 팬트리, 안방 드레스룸, 알파룸 등이 적용되었습니다.








새롭게 개발된 평면 선택제가 적용된 힐스테이트 몬테로이 아파트 22가지 다양한 타입이 제공되는 만큼 견본주택에 직접 방문해서 확인해 보시고 홈페이지에서 제공되는 E-견본주택 및 E-카달로그를 통해 미리 확인해 보시는 것도 좋을 것 같습니다.
입주자모집공고는 분양정보가 복잡하게 정리되어 있지만 첨부된 힐스테이트 몬테로이 카달로그를 이용하면 편리하게 평면도를 확인할 수 있습니다.
그리고 요즘 대세는 유튜브 동영상이겠지요. 힐스테이트 몬테로이 홍보동영상 서비스도 진행하고 있으니 모델하우스 방문하기 전에 미리 둘러보세요.
힐스테이트 몬테로이 모델하우스 위치는 경기도 용인시 수지구 동천동 901번지로 분양문의전화 031-717-3731입니다.
'정보공유' 카테고리의 다른 글
| 김해 장유역 한라비발디 센트로 모집공고 - 분양가, 평면도 (0) | 2022.01.25 |
|---|---|
| 송도 luxe Ocean SK VIEW 모집공고 정리 - 평면도, 분양가 (0) | 2022.01.25 |
| 익산 라송 센트럴카운티 공공지원민간임대아파트 정보 (0) | 2022.01.20 |
| 순천 오네뜨센트럴 아파트 모집공고 3분 정리 (0) | 2022.01.19 |
| 더샵 부평센트럴시티 아파트 추가 임차인 모집공고 정리 (0) | 2022.01.19 |
- Total
- Today
- Yesterday
- 카페창업
- 싸이월드부활
- 프랜차이즈창업
- 무인매장
- 래미안포레스티지
- 무인문구점
- 3기신도시
- 자라세일
- 한화포레나천안노태
- 힐스테이트동탄더테라스
- 빈집플랫폼
- 분양가
- 분양일정
- 자라추석세일
- 저가커피창업
- 발렌타인위스키가격
- 주점창업
- 텐퍼센트커피
- 반찬가게창업
- 10월분양정보
- 노터치세차장
- 동천동타운하우스
- 검단신도시사전청약
- 입주자모집공고
- 창업정보
- 직장건강검진
- 창업
- 창업비용
- 에어컨점검
- 6월자라세일
| 일 | 월 | 화 | 수 | 목 | 금 | 토 |
|---|---|---|---|---|---|---|
| 1 | ||||||
| 2 | 3 | 4 | 5 | 6 | 7 | 8 |
| 9 | 10 | 11 | 12 | 13 | 14 | 15 |
| 16 | 17 | 18 | 19 | 20 | 21 | 22 |
| 23 | 24 | 25 | 26 | 27 | 28 | 29 |
| 30 |